Mixed-Use Complex Proposal
Amherst, MA
Spring 2016

With a focus on expanding housing and parking in downtown Amherst, this project called for the creation of residential, commercial, and civic spaces within a single complex. Additionally, the proposal required that the Jones Library addition be integrated into the scheme. Using “architecture as topography” as a driver, the design drew upon the pioneer valley’s rolling hills, open fields, and tobacco-shed vernacular.

composite analysis of surrounding context [above]
concept models [below]

site plan

elevations

sections

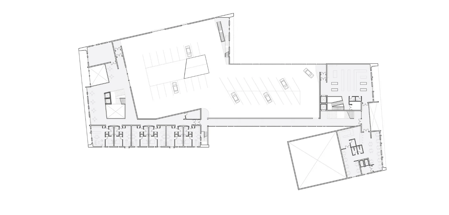
north pleasant street level

north prospect street level

2nd level

3rd level

4th level

apartment configurations