Amherst Poetry Center Proposal
Fall 2015
 

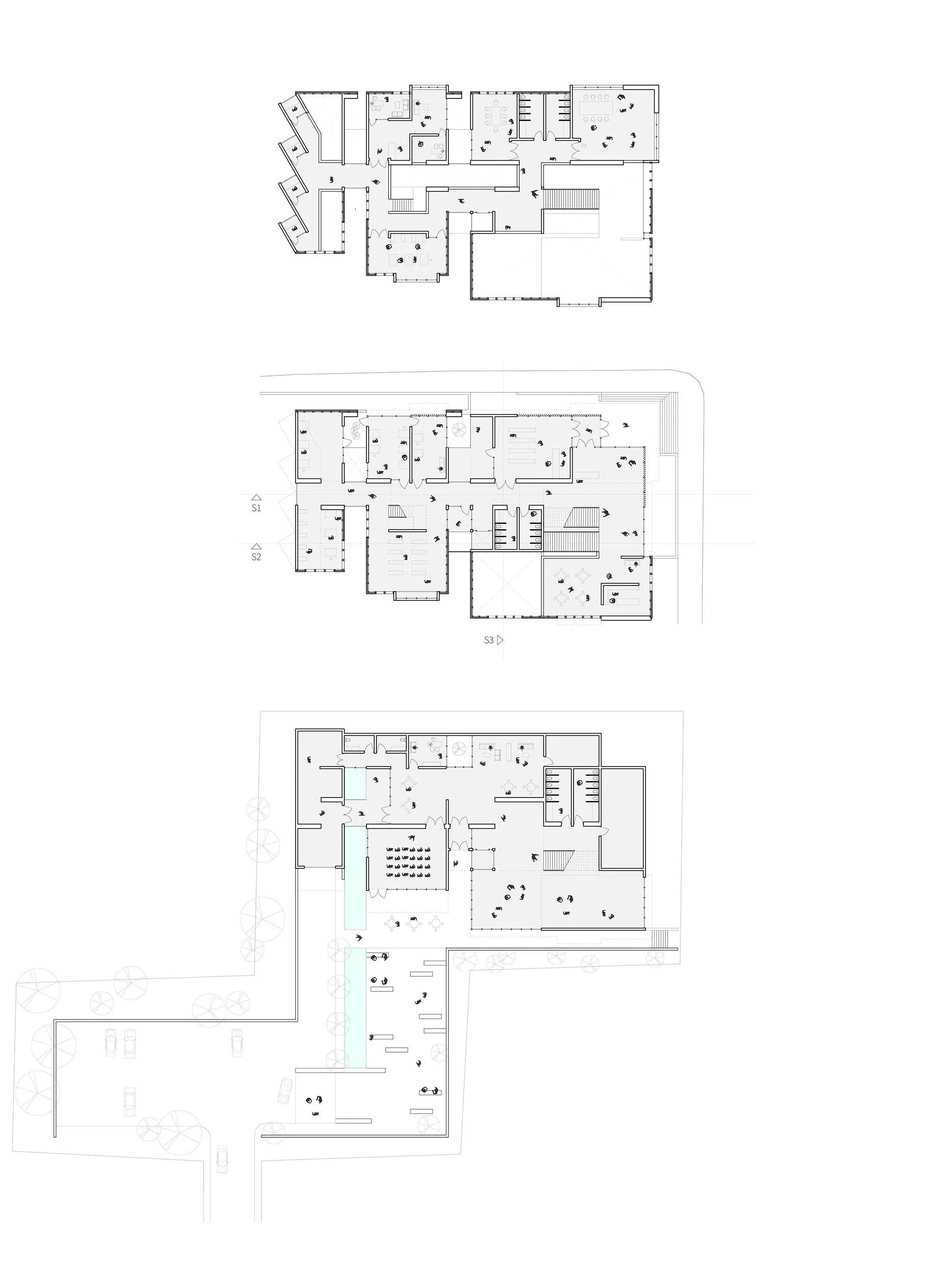
The Amherst Poetry Center is situated next to the historic Emily Dickinson House in the heart of Amherst, MA. The complex features reading rooms, public forums, performance space, and a cafe and bookstore. Exterior veins interrupt the linear flow of the program, and interior courtyards serve as buffer zones of silence between public and private spaces. An airy transparency is achieved through vertical spatial relationships and an attention to capturing natural light. 

A series of visual composite analyses drove conceptual development.
Each collage focused on a different scale of the surrounding urban fabric, and iterations of parti models arose from them. 


parti models

elevations

elevations

sections

sections

plans

plans